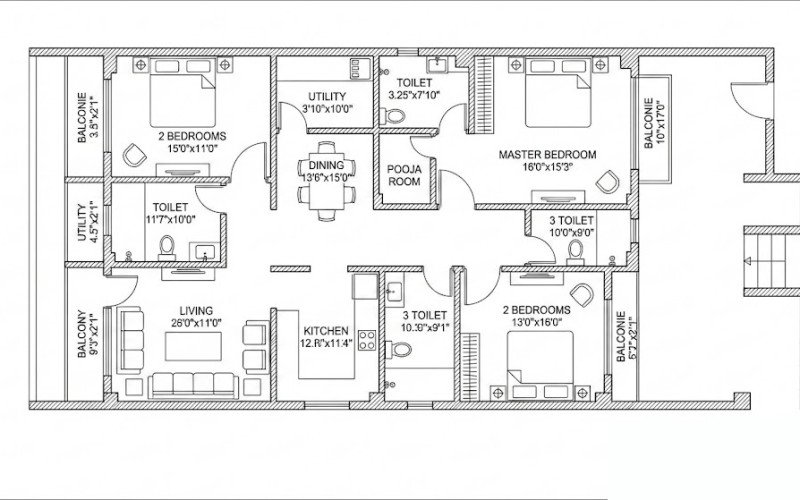
A complete house planning guide for Indian homeowners. Get smart floor plan ideas, construction planning tips, and modern elevation design solutions.
May 23, 2026